Onder de agenda tref je het vaste programma van zowel Het Trefcentrum als de Kunstketel aan. Heb je tips? Mail dan naar agenda@buurtnetwerkwvv.nl
informatie bijeenkomst Vikingsite
19 mei
17:30
Tot
19 mei, 20:00
2h 30m
Informatiebijeenkomst Vikingsite
Trefcentrum Wittevrouwenveld
Organized by
POM Vikingsite BV
POM Vikingsite BV
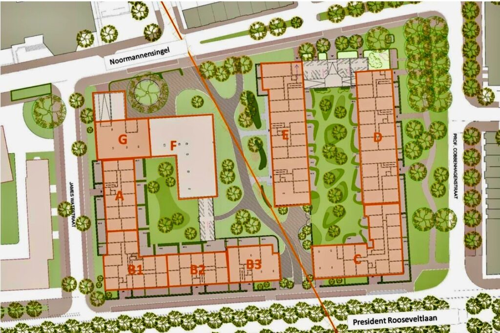
Tijdens de bijeenkomst op dinsdag 19 mei worden de eerste schetsen gepresenteerd van de ambities van dit project. Doel van deze bijeenkomst is niet alleen informatie te geven maar vooral om te horen wat we belangrijk vinden voor onze omgeving. Onze reactie helpt om de plannen beter te laten aansluiten bij de behoeften van onze wijken.
Aanmelden uiterlijk vóór 17 mei via dit aanmeldformulier
Programma
Inloop vanaf 17:30h
- 18:00h Welkom en opening
- 18:10h Presentatie van het proces op hoofdlijnen (planning, participatieproces)
- 18.25h Presentatie Masterplan
- 19:00h Informatiemarkt en gelegenheid tot delen van ideeën (bebouwing, groen, en openbare ruimte, voorzieningen etc. etc.), gelegenheid tot het stellen van vragen
- 20:00h Einde

Vaste agenda Trefcentrum Wittevrouwenveld
| Dag | Hoe laat | Wat |
| Maandag | 10.00 – 12.00 | Taalspreekuur: beter lezen en schrijven |
| 11.00 – 16.00 | Ontspanningsclub (in de mannenzaal) | |
| 13.00 – 14.00 | Gymclub | |
| 14.00 – 16.00 | Maandagmiddagclub | |
| 17.00 – 23.00 | Kienen | |
| 19.00 – 20.30 | Postzegelclub | |
| 19.30 – 21.00 | Repetitie drumband | |
| Elke laatste maandag van de maand | 13.30 – 15.00 | Mantelzorgcafé Maastricht Oost |
| Vanaf 31 augustus 2026 | 19.30 – 21.00 | Repetitie zangkoor Valentijn |
| Dinsdag | ||
| 11.00 – 16.00 | Ontspanningsclub (in de mannenzaal) | |
| 13.30 – 16.00 | Kienen voor senioren | |
| 14.00 – 17.00 | Taalondersteuning op afspraak | |
| 19.30 – 21.30 | Zaank en Kemedie Maos en Neker (repetitie) | |
| Om de week | ? | Activiteiten voor vrouwen 55+ |
| 20.00 – 22.15 | Repetitie Harmonie de Gele Rijders | |
| Woensdag | ||
| 10.00 – 11.00 | Charlie Winter gym (Yoga) | |
| 14.00 – 16.00 | Omgaan met computer/telefoon/tablet | |
| 17.00 – 23.00 | Kienen | |
| 19.30 – 21.30 | Enthusiasta Sambaband (repetitie) | |
| Donderdag | ||
| 14.00 – 16.00 | Taalcafé: oefenen met Nederlands praten | |
| Vrijdag | ||
| 10:00 – 11:00 | Charlie Winter gym (Yoga) | |
| 12.30 – 14.30 | Vrijdagmiddag gebed | |
| Wisselende data (check facebook) | 18.00 – 20.00 | Samen eten in ’t Tref |
| Zaterdag | ||
| 09.45 – 12.00 | Toonkunstkoor Maastricht |
Vaste agenda Kunstketel
meer info: manon.pachen@trajekt.nl of 06 – 52 80 75 78
